その他

売中古分譲マンション物件
物件番号N-9
お薦めポイント*眺望良好
*バルコニー南向き
*阪急宝塚線岡町駅徒歩約8分
*オール電化
所在地[住所]大阪府豊中市岡町南
[交通]阪急宝塚線・岡町駅・徒歩約8分
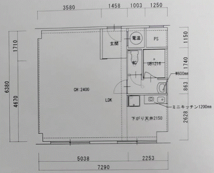
条件[契約面積]
*面積-46.72㎡
[価格]830万円
[現況]空室(改装済)
[管理費]月額10,400円
[修繕積立金]月額6,930円
*賃貸条件
月額賃料60,000円
保証金1ヶ月
礼金2ヶ月
建物[竣工年]昭和38年8月
[管理形態]一部委託・管理人日勤
[その他]水道・電気
備考*2025年4月室内工事完了(床クッションフロア・天壁クロス貼替、エアコン1基新設、ミニキッチ新設、一口IHコンロ新設、洗濯機置場新設、洗面台新設、トイレと風呂セパレート新設工事、網戸貼替、塗装美装工事)

ページのトップに戻る

ページのトップに戻る

Copyright (C) 2009 SSC Inc. All Rights Reserved.

電話:06-6534-0062/午前9時〜午後6時(土曜日は昼12時まで・日祝休)

お問い合わせ

メニュー閉じる